Modern wonen in Estepona: Ruime appartementen met zonnige terrassen
Je ideale huis wacht
Welkom in je droomhuis in Estepona, een charmant kuststadje dat bekend staat om zijn ontspannen sfeer en verbluffende natuurlijke schoonheid. Dit moderne wooncomplex, ontworpen door de prestigieuze architectuurstudio Villarroel, beschikt over ruime appartementen met 2 en 3 slaapkamers en luxe penthouses. Met een focus op comfort en elegantie biedt deze omheinde gemeenschap een ideale omgeving voor wie op zoek is naar een rustige levensstijl.
Ongeëvenaarde voorzieningen en functies
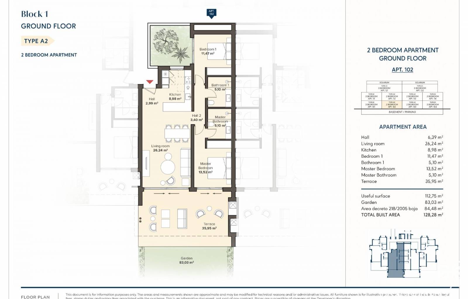
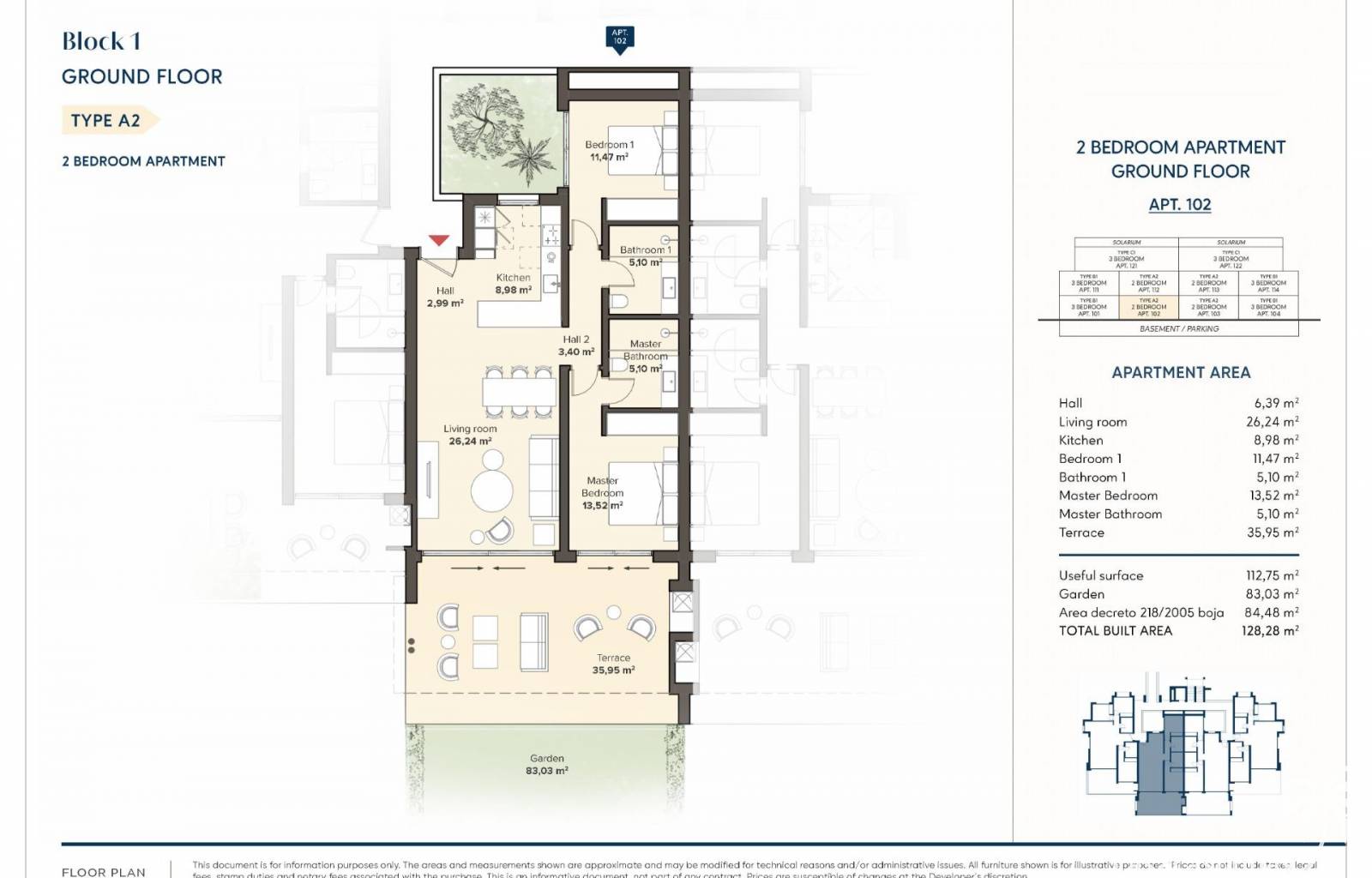
Elk appartement is ontworpen met hoge kwaliteitsnormen en geavanceerde technologie, waardoor energiezuinigheid en milieuduurzaamheid gegarandeerd zijn. Geniet van uitgestrekte, zonovergoten terrassen die perfect zijn om buiten te ontspannen. Elke woning is voorzien van een volledig ingerichte keuken, complete badkamers, een eigen ondergrondse parkeergarage en bergingen die bij de prijs zijn inbegrepen.
Oase in de buitenlucht
Het complex beschikt over een buitenzwembad omringd door weelderige tuinen, die een serene sfeer creëren. Geniet van ontspannen wandelingen langs pittoreske paden die zijn ontworpen met duurzaamheid en esthetiek in het achterhoofd. De tuinen zijn voorzien van een slim irrigatiesysteem en energiezuinige LED-verlichting, wat de schoonheid verhoogt en tegelijkertijd de duurzaamheid bevordert.
Toplocatie
Dit complex ligt in Estepona en biedt gemakkelijke toegang tot verschillende bezienswaardigheden. Je bevindt je op slechts 1 km van het dichtstbijzijnde strand, op 10 km van Estepona Golf Club en op 20 minuten rijden van Marbella. De dichtstbijzijnde luchthaven, Málaga-Costa del Sol, ligt op slechts 70 km afstand, waardoor reizen moeiteloos gaat. Lokale winkelcentra en restaurants liggen op korte afstand en bieden alle nodige voorzieningen.
Veiligheid
Veiligheid staat voorop in dit luxe complex. Met automatische poorten voor zowel voertuigen als voetgangers kunnen bewoners genieten van gemoedsrust in deze volledig ommuurde gemeenschap.
Een unieke levensstijl wacht
Ervaar een unieke levensstijl vol comfort en verfijning in Estepona. Of je nu op zoek bent naar een gezellig familiehuis of een elegant toevluchtsoord, dit moderne wooncomplex is de perfecte plek om blijvende herinneringen te creëren. Mis de kans niet om van deze prachtige woning je nieuwe thuis te maken.