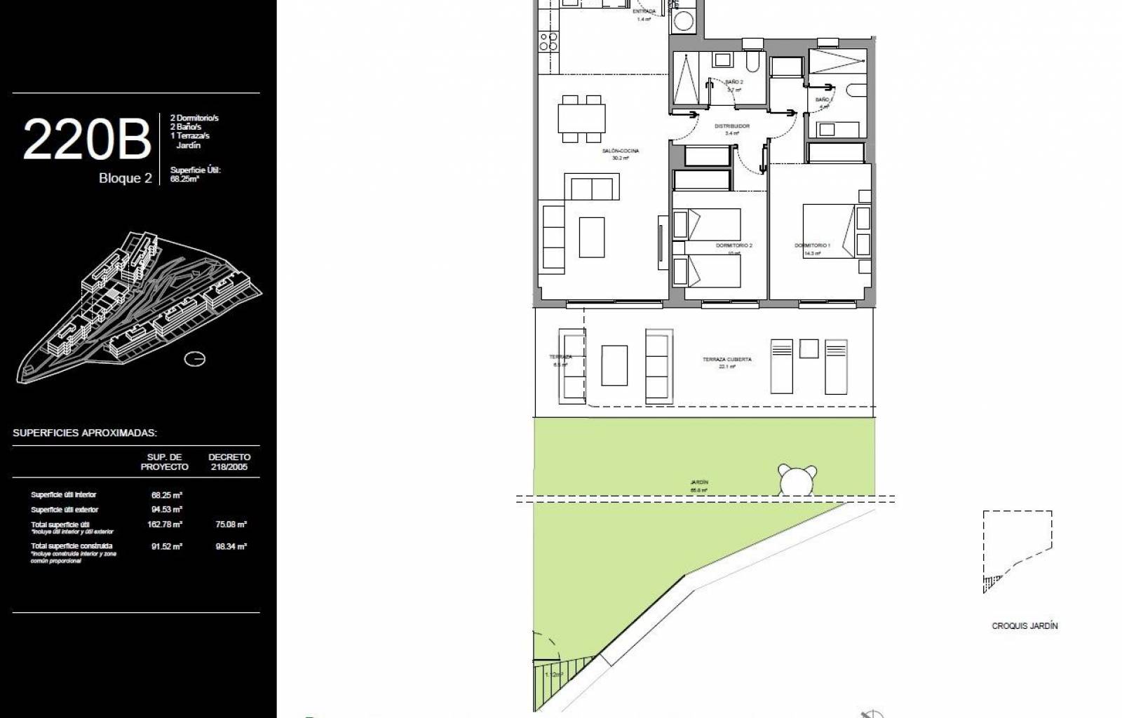
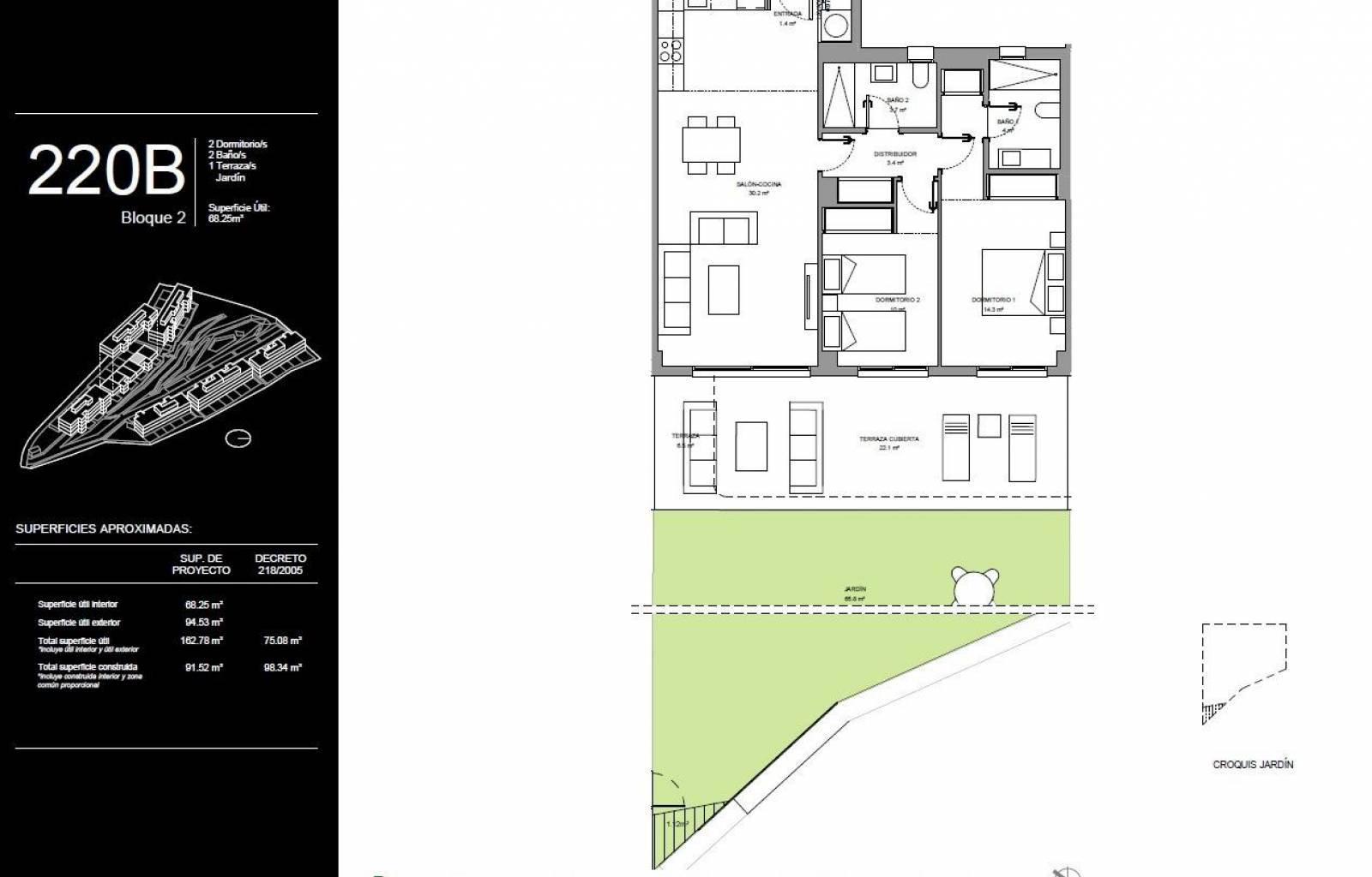
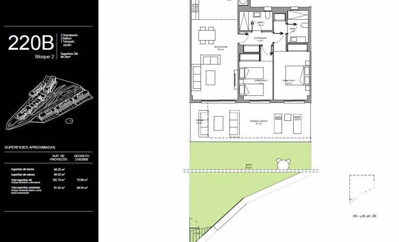
Ontdek een stijlvol en volledig afgesloten wooncomplex in Mijas, waar comfort, natuur en design samenkomen in een unieke woonomgeving aan de Costa del Sol. Het project bestaat uit zes elegante gebouwen met in totaal 108 appartementen en penthouses met 2 en 3 slaapkamers.
De woningen zijn zorgvuldig gepositioneerd om optimaal te profiteren van hun omgeving. U heeft de keuze tussen:
Panoramisch uitzicht op zee
Uitzicht op de golfbaan en de indrukwekkende bergketen van Mijas
Elke woning beschikt over een eigen parkeerplaats en is ontworpen met oog voor ruimte, licht en wooncomfort.
De begane grond appartementen bieden een privétuin, terwijl de hogere verdiepingen exclusieve duplexpenthouses met solarium omvatten — perfect voor wie wil genieten van het buitenleven in alle privacy.
De gemeenschappelijke ruimtes zijn ontworpen om een ontspannen en luxe woonervaring te creëren:
Tropisch aangelegde tuinen
Stijlvol gemeenschappelijk zwembad
Volledig uitgeruste fitnessruimte
Sociale ruimte en coworkingfaciliteiten
Alles binnen een veilige, afgesloten residentie die rust en privacy garandeert.
Deze locatie biedt een uitzonderlijke levenskwaliteit met een perfecte combinatie van zon, zee en natuur. Met meer dan 12 kilometer kustlijn, een ruim aanbod aan golfbanen en een rijke culinaire scene — van internationale restaurants tot authentieke lokale keuken — is dit een ideale plek om te wonen en te genieten.
Mijas staat bekend om zijn unieke karakter, waar traditionele Andalusische charme en moderne voorzieningen naadloos samenkomen. De geplaveide straatjes, witgekalkte huizen en kleurrijke bloemen creëren een sfeervolle omgeving, terwijl het uitgebreide vrijetijdsaanbod zorgt voor een levendige en dynamische levensstijl.
Dankzij de bevoorrechte ligging tussen zee en bergen behoort Mijas tot de meest aantrekkelijke bestemmingen aan de Costa del Sol.
Dit exclusieve project biedt een perfecte balans tussen luxe, comfort en locatie. Ideaal als permanente woning, tweede verblijf of investering in een van de meest geliefde regio’s van Zuid-Spanje.
Neem vandaag nog contact met ons op voor meer informatie of een bezichtiging. Bel +35 965 724 489 of contact@casalasdunas.com