Ein neues Bauprojekt in drei Phasen, beginnend mit Phase 11 im Süden. Diese Phase umfasst sechs sehr geräumige und moderne Villen.
Das Projekt befindet sich im charmanten Viertel Dolores.
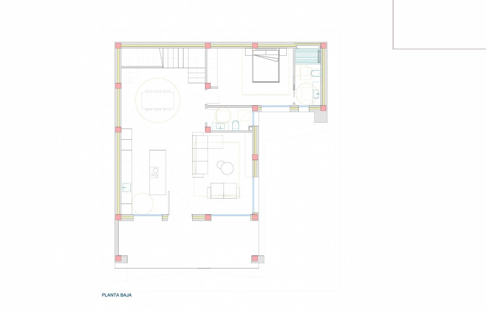
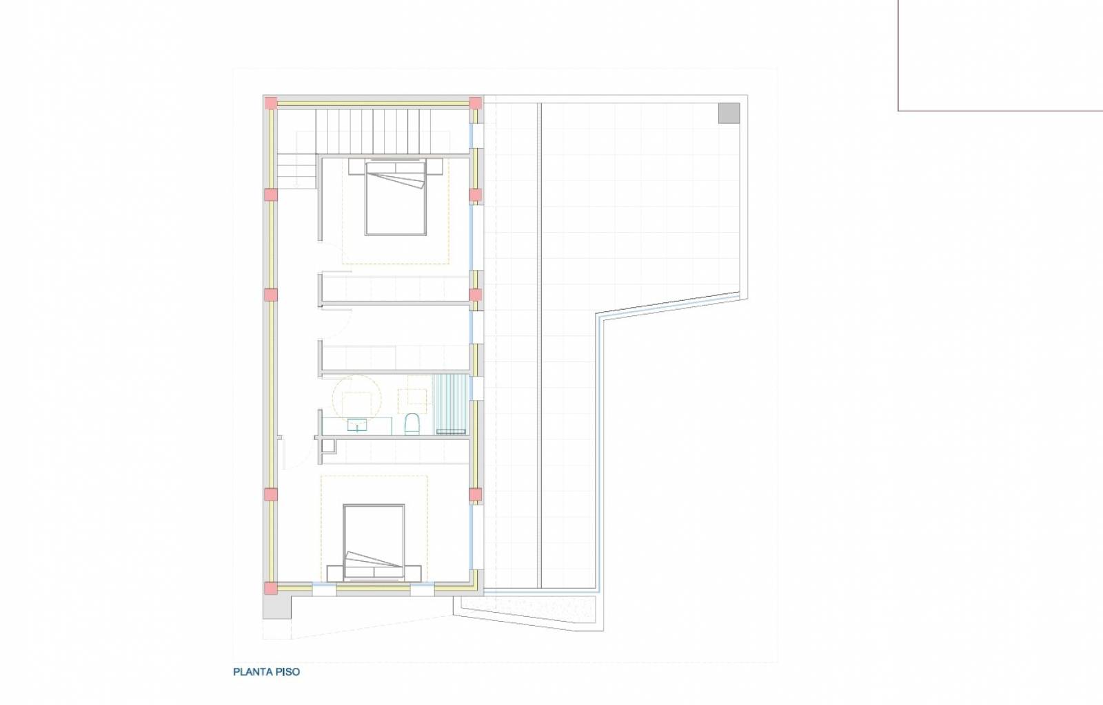
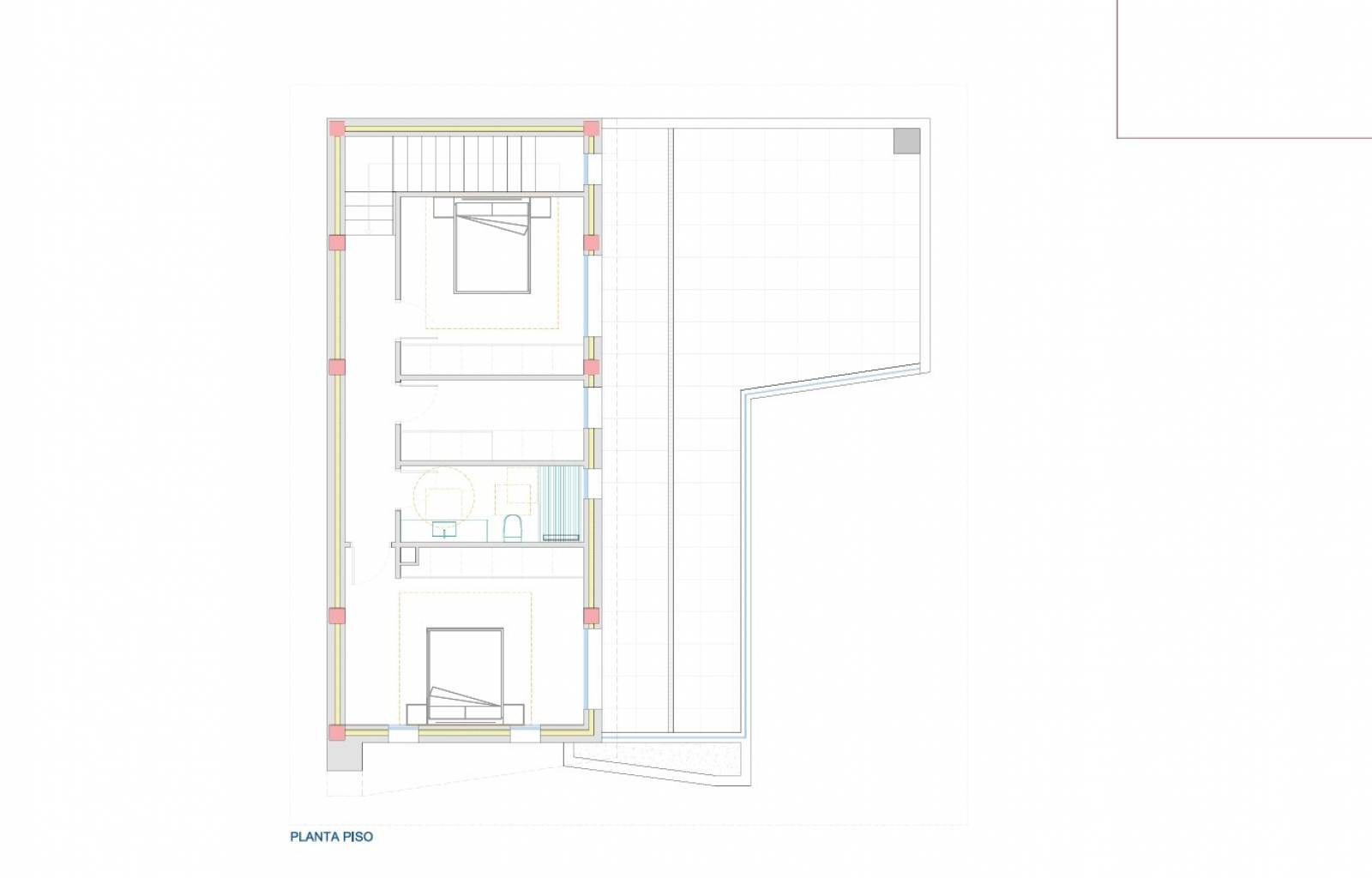
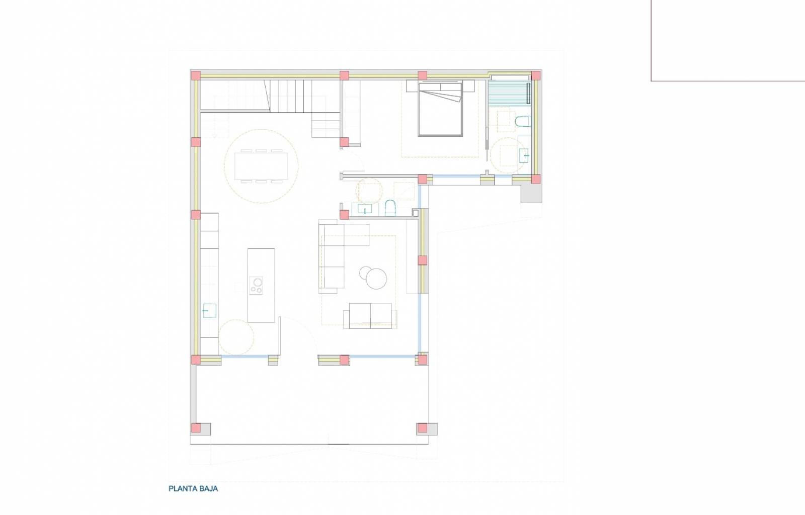
Im Erdgeschoss befinden sich ein großzügiges Wohnzimmer, eine schöne Küche mit Kochinsel, eine gemütliche, geräumige Fernsehecke und ein Gäste-WC. Das Haus verfügt standardmäßig über drei Doppelschlafzimmer: eines im Erdgeschoss mit eigenem Bad und zwei im Obergeschoss, in dem sich außerdem ein Familienbad und ein Hauswirtschaftsraum befinden.
Die Wohnfläche beträgt ca. 165 Quadratmeter, die Grundstücksgröße ca. 265 Quadratmeter und bietet somit viel Platz für komfortables Wohnen.
Die Villa verfügt zudem über einen Keller (Technikkeller), der im Rohbau übergeben wird, aber gegen Aufpreis ausgebaut werden kann.
Das Haus besticht durch eine schöne offene Küche mit integrierten Geräten und Frühstücksbar, ein gemütliches und geräumiges Wohnzimmer, Schlafzimmer mit Einbauschränken und vieles mehr. Die großzügige Raumaufteilung sorgt für viel Tageslicht und einen schönen Blick auf die Terrasse und den Stadtpark. Neben der Terrasse im Erdgeschoss bietet die Villa auch eine geräumige Terrasse im ersten Stock sowie einen privaten Pool – ideal zum Entspannen oder für gesellige Stunden – und einen Parkplatz direkt am Haus.
Alle Aluminiumfenster sind mit elektrischen Rollläden ausgestattet, und das Haus verfügt über eine verstärkte Sicherheitstür. Klimaanlagen sind sowohl im Erdgeschoss als auch im ersten Stock installiert, sodass Sie sofort einziehen können.