Entdecken Sie diese brandneue, exklusive Villa in Calpe , gelegen in einer der begehrtesten Wohngegenden der Region. Die Lage bietet das Beste aus beiden Welten: Ruhe und Sicherheit am Rande des Stadtzentrums, mit allen Annehmlichkeiten, Stränden und urbanem Flair in unmittelbarer Nähe . Ideal für alle, die von einem komfortablen und entspannten Leben an der Costa Blanca träumen.
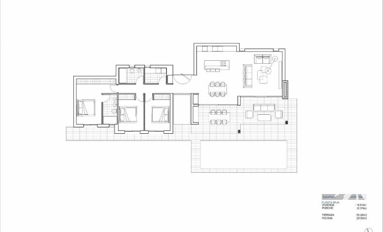
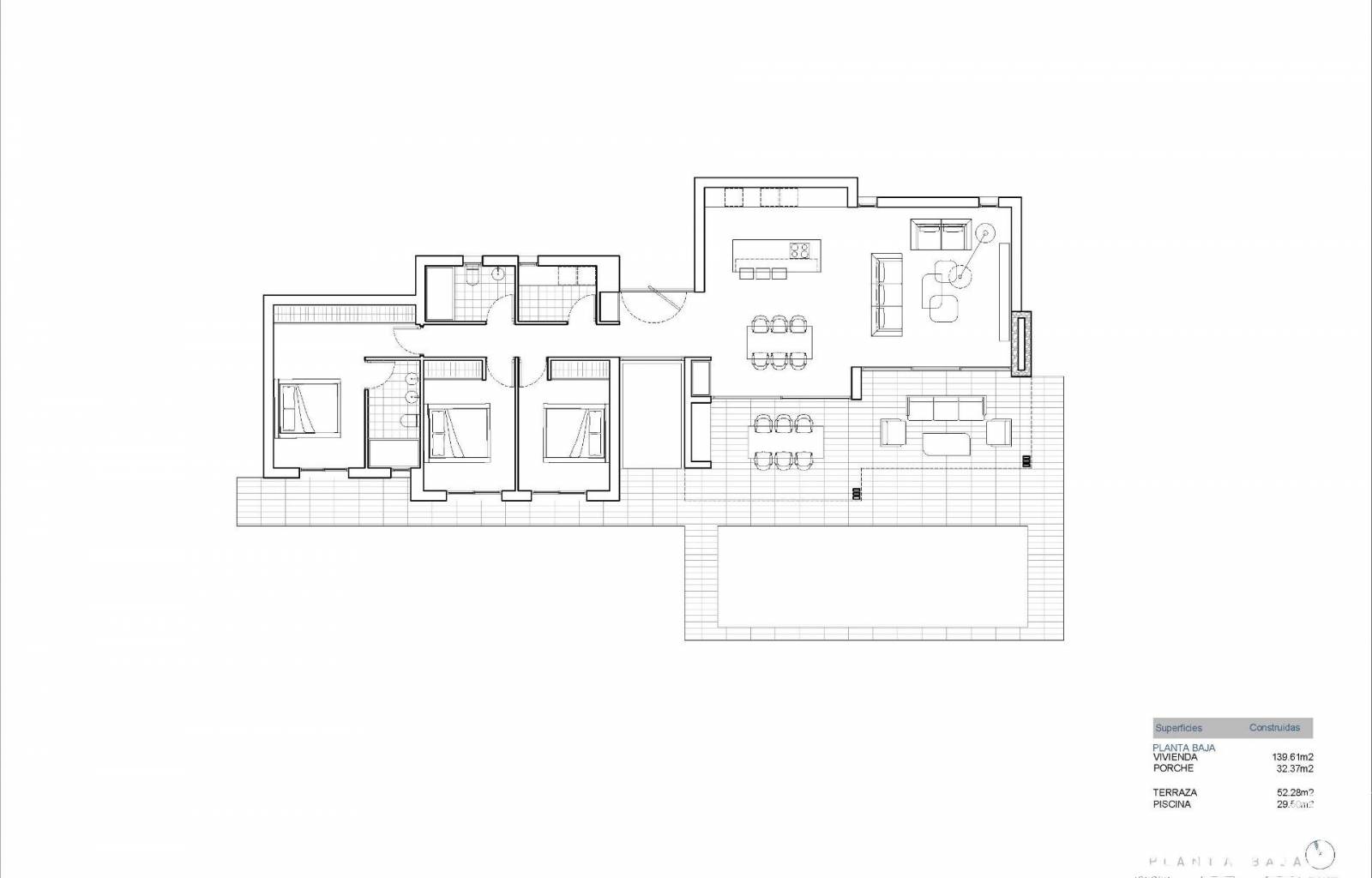
Die Villa erstreckt sich komplett über eine Ebene und bietet so optimalen Komfort und eine praktische Raumaufteilung. Gleich links vom Eingang befindet sich ein großzügiger Wohnbereich mit einem hellen Wohnzimmer, einem Esszimmer und einer offenen Küche mit Kochinsel . Große Glasschiebetüren verbinden den Innen- und Außenbereich nahtlos und ermöglichen den direkten Zugang zur Terrasse.
Der Außenbereich ist perfekt auf den mediterranen Lebensstil abgestimmt. Sie genießen eine überdachte Veranda mit Grill , eine große Sonnenterrasse und einen privaten Swimmingpool von ca. 40 m² . Das komplett umzäunte und von einer Zypressenhecke umgebene Grundstück garantiert optimale Privatsphäre und eine üppige, angenehme Atmosphäre.
Auf der rechten Seite des Hauses befindet sich der Schlafbereich mit vier Schlafzimmern:
Das Anwesen verfügt über zwei Pkw-Parkplätze und eine elegante , segelförmige Pergola . Dank seiner idealen Lage ist Calpe über die Autobahnen A7 und N-332 schnell und bequem zu erreichen. Die Flughäfen Alicante und Valencia sind jeweils etwa eineinhalb Autostunden entfernt .
Calpe ist bekannt für seine einzigartige Mischung aus authentischem valencianischem Charme und modernen Annehmlichkeiten . Die Stadt bietet drei wunderschöne Sandstrände , eine lebhafte Promenade, exzellente Restaurants und zwei Yachthäfen: den Real Club Náutico de Calpe und Puerto Blanco . Umgeben von Orten wie Altea, Benissa und Moraira ist Calpe zudem ein idealer Ausgangspunkt, um die Costa Blanca zu erkunden.
Suchen Sie eine moderne, brandneue Villa in Calpe mit Swimmingpool, Privatsphäre und erstklassiger Lage in Meeresnähe? Diese ebenerdige Villa ist eine ausgezeichnete Wahl als Hauptwohnsitz, Zweitwohnsitz oder Kapitalanlage.
ChatGPT kann Fehler machen. Beachten Sie die wichtigsten Punkte.