NOUVELLE CONSTRUCTION D'UNE VILLA DE LUXE EXCLUSIVE À FINCA CORTESÍN, CASARES
Cette résidence exceptionnelle, exclusive au complexe Finca Cortesin, dégage un mélange captivant de luxe et d'élégance. Conçu par les célèbres architectes Jose Maria Sierra, ce chef-d'œuvre architectural est sans équivalent sur la Costa del Sol, avec un terrain remarquable et des vues à couper le souffle.
La propriété est dotée d'une abondance de fenêtres allant du sol au plafond sur les deux niveaux, ce qui permet à la lumière naturelle d'inonder les intérieurs. Sa façade blanche remarquable, agrémentée d'accents en bois, donne le ton d'une transition transparente entre les espaces extérieurs et intérieurs.
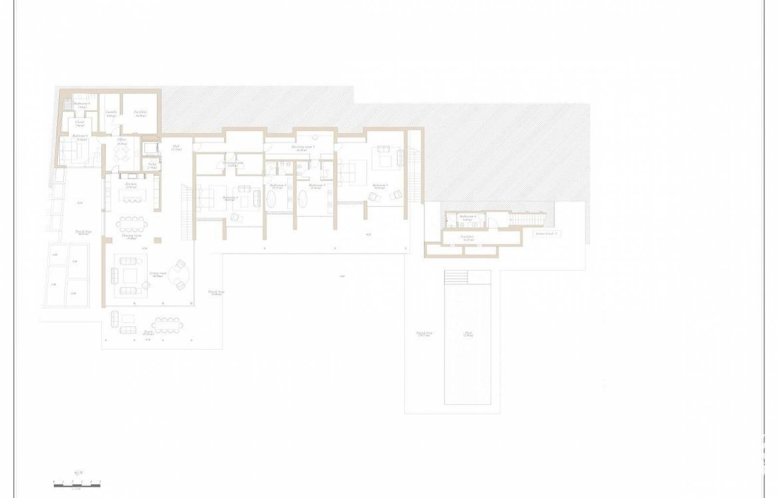
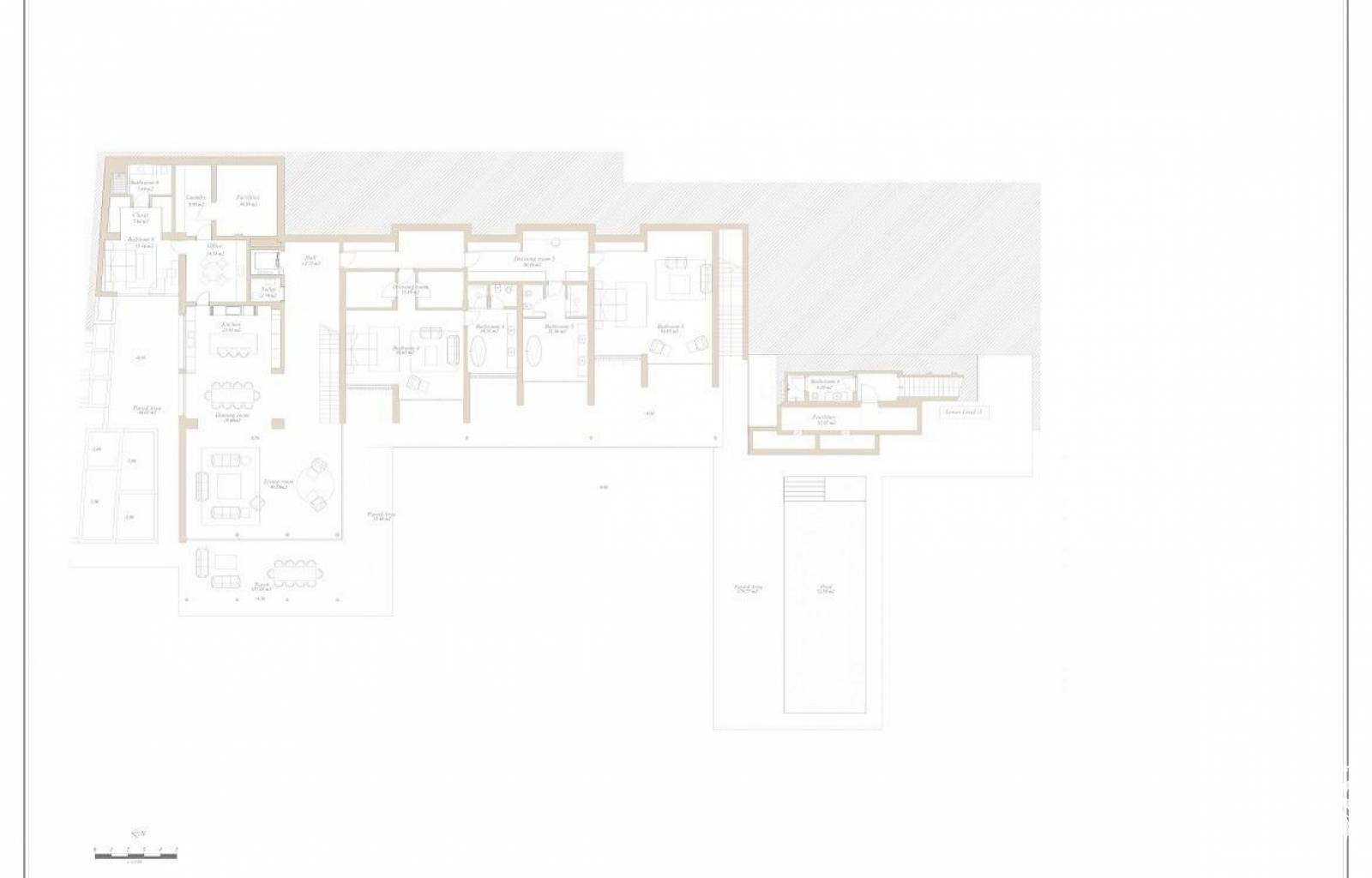
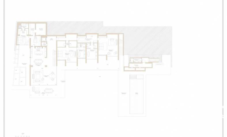
Il convient de souligner la hauteur impressionnante des plafonds, qui atteignent 9 mètres dans l'espace de vie du rez-de-chaussée. Une caractéristique unique est le petit espace de vie au dernier étage, qui offre un point de vue sur l'espace de vie du rez-de-chaussée - une retraite privée, semblable à une terrasse cachée dans la propriété. Le niveau supérieur est consacré à la chambre principale et aux deux chambres d'amis, chacune offrant sa propre allure avec une vue imprenable sur le terrain de golf et la mer Méditerranée.
Le niveau inférieur comprend les autres chambres, le salon et la cuisine, un mélange harmonieux de fonctionnalité et de style. L'ensemble du rez-de-chaussée s'ouvre sans difficulté sur le jardin, accueillant l'air frais et la lumière naturelle dans la propriété.
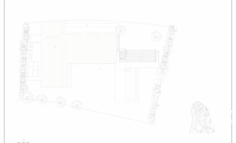
Le joyau de la couronne de cette résidence est le jardin spectaculaire, de grande taille et méticuleusement entretenu.
Véritable havre de paix pour les amateurs d'activités de plein air, le jardin est agrémenté d'une piscine aux carreaux azur foncé qui invite à une baignade rafraîchissante, tandis que le gazebo intégré à côté de la piscine offre un cadre idyllique pour se détendre. Des palmiers majestueux bordent le jardin, complétant les vues panoramiques sur le terrain de golf et le littoral méditerranéen. L'aménagement paysager, avec de superbes parterres de fleurs et des buissons méticuleusement taillés, ajoute une touche de beauté naturelle. Avec son emplacement privilégié en première ligne du golf, son architecture impressionnante et son ambiance inégalée, cette propriété vraiment unique témoigne de l'attrait de la Finca Cortesin Resort.