COMPLEXE RÉSIDENTIEL NEUF À TORREMOLINOS
La nouvelle construction résidentielle est située dans l'un des quartiers les plus recherchés de la ville, un endroit calme où les résidents peuvent se déconnecter de l'agitation quotidienne. Ici, vous avez tous les ingrédients pour mener la vie que vous souhaitez. Une destination pleine de vie et d'enthousiasme, des plages charmantes, une culture gastronomique, d'excellentes communications.
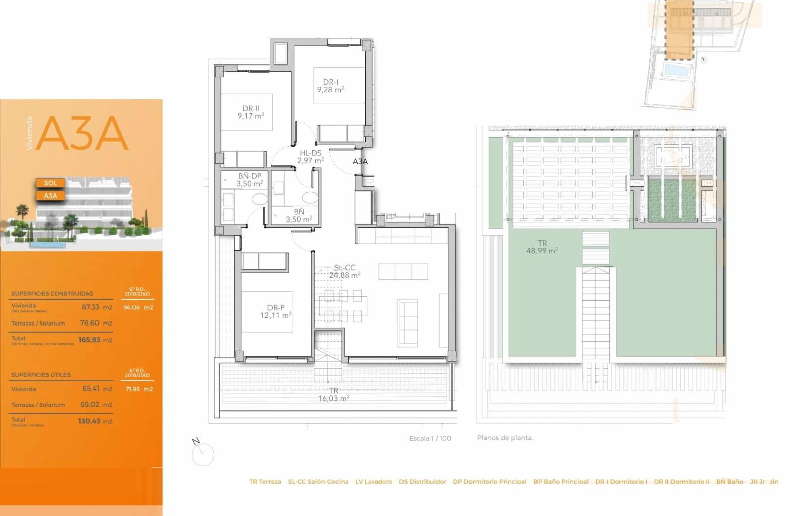
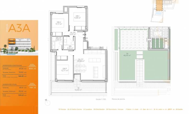
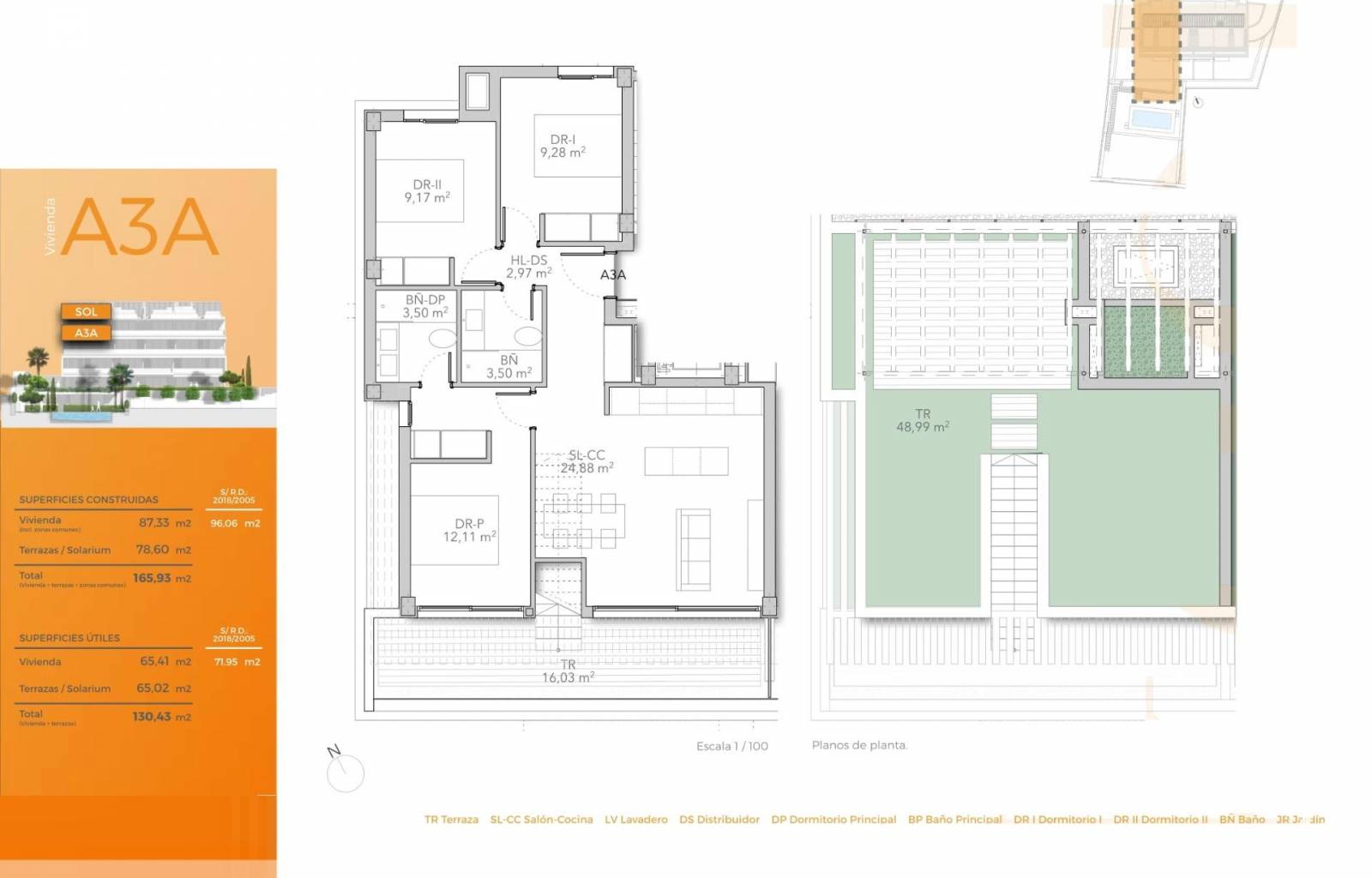
Le nouveau complexe résidentiel se compose de 16 appartements et penthouses et de 32 places de parking structurées au sous-sol.
Les appartements du rez-de-chaussée disposent d'un jardin privé, le premier et le deuxième étage de belles terrasses et le niveau supérieur des penthouses d'un solarium privé et d'une piscine en option.
En outre, il dispose d'un salon multifonctionnel équipé d'une petite cuisine, d'une connexion Wi-Fi communautaire, d'une terrasse, d'une piscine d'eau salée et de jardins communautaires. Le design a été un élément clé tant à l'extérieur qu'à l'intérieur : De grandes fenêtres laissent entrer la chaude lumière méditerranéenne, transformant la terrasse en extension naturelle des pièces à vivre ; une distribution des espaces avec une utilisation maximale de l'espace ; une orientation soigneusement étudiée qui permet une utilisation exceptionnelle de la lumière et des couchers de soleil sereins ; des matériaux élégants de la plus haute qualité créent une atmosphère de luxe et d'exclusivité. L'espace ouvert a été méticuleusement conçu pour offrir une oasis de détente et de loisirs et vous invite à profiter de moments de paix et de sérénité.
Le complexe résidentiel est votre refuge privé où confort et tranquillité s'entremêlent pour offrir un espace de repos exceptionnel. Ici, l'adéquation est une priorité avec des matériaux de construction respectueux de l'environnement, un environnement intérieur sain et efficace, la climatisation par des planchers radiants et la production de chaleur par l'énergie aérothermique à haut rendement énergétique.
La proximité de l'aéroport de Malaga, avec des liaisons quotidiennes vers toute l'Europe, constitue un avantage considérable pour ceux qui recherchent l'endroit idéal pour investir et vivre. La station El Pinillo permet de rejoindre l'aéroport, la gare de Málaga AVE et le centre de la capitale en quelques minutes seulement. L'un des principaux attraits de Torremolinos est son climat méditerranéen, caractérisé par des hivers doux et des étés chauds et ensoleillés. Avec plus de 300 jours de soleil par an, c'est un plaisir de profiter des activités de plein air et de ses grandes plages de sable doré, comme la Playa de la Carihuela ou le Benalmádena Puerto Marina. La cuisine méditerranéenne riche et variée est l'essence même de la région, avec son traditionnel pescaito frito. Sans oublier que Torremolinos est composée d'une communauté internationale qui a créé un environnement multiculturel et diversifié, avec une atmosphère de liberté très accueillante.