VILLAS NEUVES À LOS ALCAZARES
Nouvelle construction de 12 villas individuelles exclusives, chacune avec une piscine privée et un solarium sur le toit, située à seulement 150 m de la belle plage de Los Narejos et à seulement 2 minutes à pied de la bande animée de Rio Nalon avec sa richesse de bars et de restaurants.
Des maisons de signature, construites selon les normes les plus strictes, dans l'un des meilleurs emplacements de la Mar Menor.
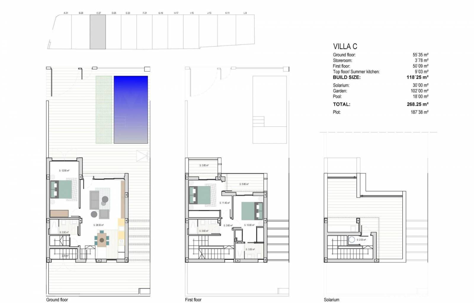
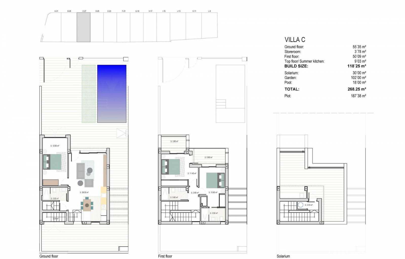
Toutes les villas ont une surface habitable de plus de 120 m2 et des jardins privés de plus de 100 m2, avec un parking hors route disponible sur le terrain et une piscine privée de 6 m x 3 m avec une plate-forme de bronzage incluse.
Tous les appareils électroménagers sont inclus : réfrigérateur-congélateur, four, micro-ondes, plaque vitrocéramique, hotte aspirante, lave-vaisselle, lave-linge et mini-réfrigérateur dans la cuisine d'été.
Pré-installation de l'air conditionné par gaine dans tout le logement.
Éclairage intérieur et extérieur, sauf les lumières ornementales.
Volets motorisés.
Le rez-de-chaussée comprend un salon-salle à manger lumineux avec cuisine ouverte, une salle de bains et une pièce supplémentaire de 13 m2 qui pourrait être utilisée comme troisième chambre, salle à manger séparée ou comme garage ; cette pièce aura des portes vitrées panoramiques qui s'ouvrent vers l'extérieur et qui permettront à une voiture de se garer à l'intérieur si nécessaire (*bien que cet espace intérieur puisse être utilisé pour tout ce que les propriétaires souhaitent et sera préparé comme une chambre à coucher, il sera inscrit comme garage sur les actes). Il y a également un espace de stockage extérieur et une pompe de piscine dans le patio arrière. Au premier étage se trouve la chambre principale avec salle de bain en-suite, deux armoires encastrées et un accès direct au balcon, ainsi qu'une autre chambre double avec armoires encastrées et accès aux balcons. Une troisième salle de bains familiale se trouve également au premier étage.
Les escaliers du premier étage mènent à un solarium privé sur le toit, avec une cuisine d'été équipée d'un évier, d'un plan de travail et d'un placard contenant un mini-réfrigérateur. Le solarium offre des vues fantastiques grâce à sa situation en bord de mer.
Isolation thermique à haute efficacité énergétique et haut niveau d'insonorisation.
Pare-douche avec deux options disponibles.
Prises de télévision et de téléphone dans le salon, les chambres et le solarium.
Portes intérieures, menuiserie et placards en blanc.
Double vitrage avec protection solaire optimale.
Système d'eau chaude par chaudière électrique réglable et panneaux solaires photovoltaïques de 1,5 kw.
Pré-installation pour un chargeur de voiture électrique.
Los Alcazares est une ville côtière populaire où vous trouverez des magasins, des bars, des restaurants, des supermarchés, des pharmacies, un centre de santé, une station de taxis et des arrêts de bus.
Les liaisons de communication sont excellentes, avec l'autoroute AP7 à proximité.
L'aéroport international de Murcie se trouve à moins d'une demi-heure de route (40 km) et l'aéroport d'Alicante est accessible en moins d'une heure (93 km).
Le prestigieux Roda Golf & Beach Resort, avec son parcours de 18 trous conçu par Dave Thomas, se trouve à seulement 2,5 km.