Apartamentos y villas de nueva construcción en primera línea de golf en Los Alcázares, Costa Cálida
Complejo residencial exclusivo cerca de la playa y del campo de golf
Descubra este excepcional complejo residencial de nueva construcción en Los Alcázares, una de las localidades costeras más codiciadas de la Costa Cálida. Con una ubicación ideal a solo 1,2 km de las playas del Mar Menor y en primera línea del campo de golf La Serena, este complejo ofrece una combinación perfecta entre la vida moderna, el estilo de vida costero y el tranquilo entorno de un campo de golf.
Los Alcázares es una encantadora localidad costera conocida por su ambiente relajado, su largo paseo marítimo, sus restaurantes locales y sus servicios durante todo el año, lo que la convierte en un lugar ideal tanto para residir de forma permanente como para disfrutar de una vivienda vacacional.
Apartamentos modernos y villas exclusivas
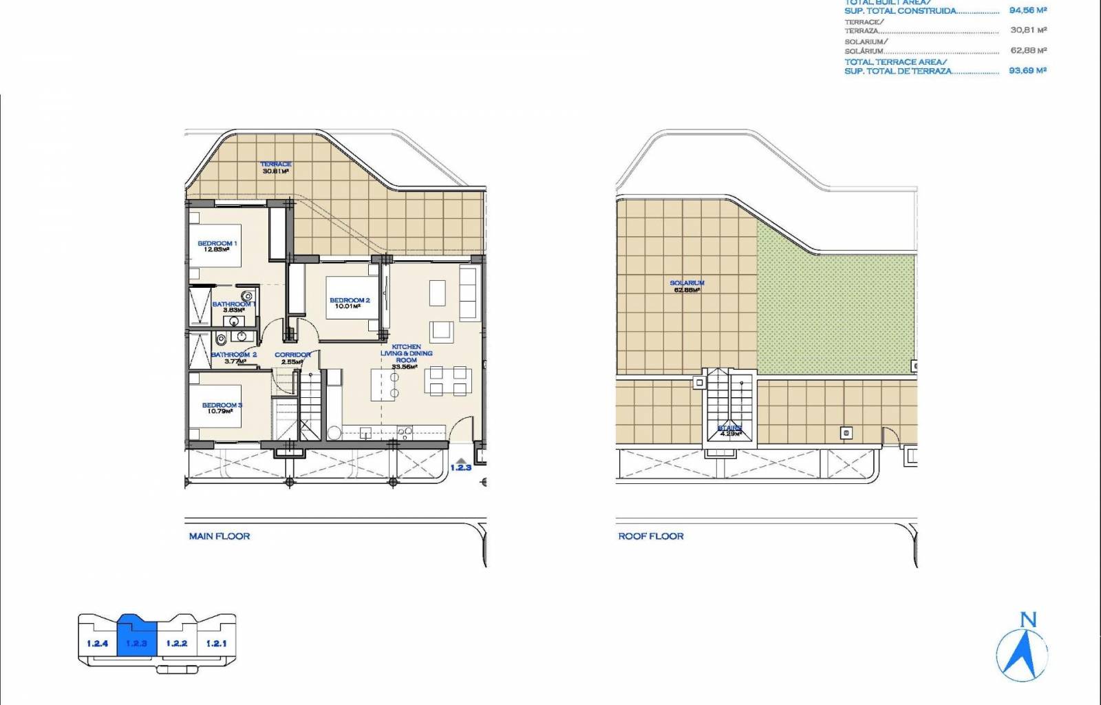
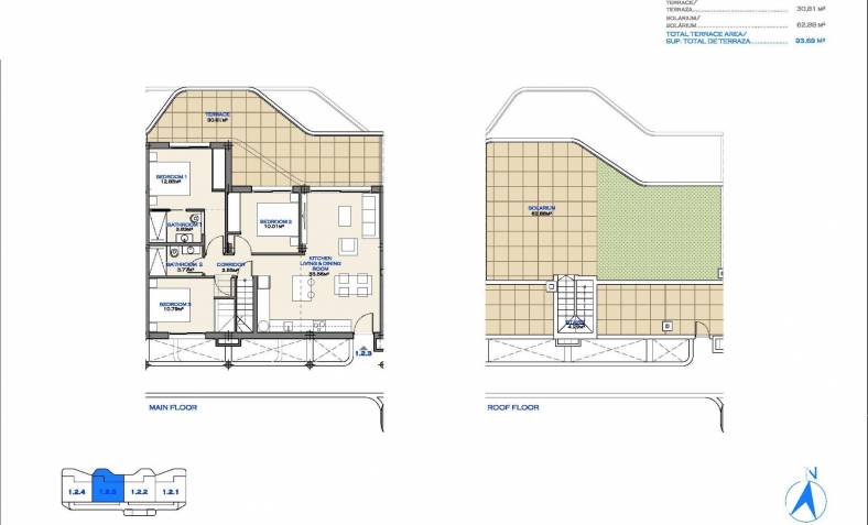
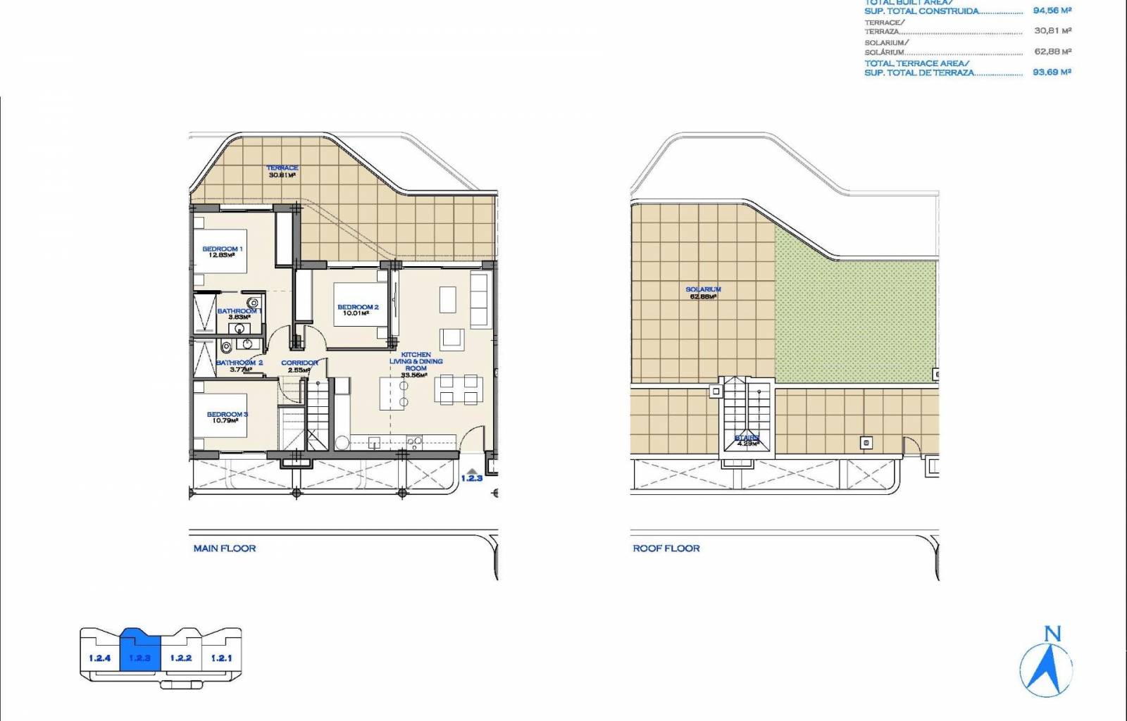
La promoción consta de 37 apartamentos contemporáneos distribuidos en tres edificios de baja altura, diseñados en torno a una preciosa piscina comunitaria y jardines paisajísticos. Los compradores pueden elegir entre apartamentos de 2, 3 o 4 dormitorios, incluyendo unidades en planta baja con terrazas, apartamentos en plantas intermedias y áticos con soláriums privados que ofrecen vistas despejadas al campo de golf y al mar.
Además, el proyecto incluye 7 exclusivas villas de una sola planta con 3 dormitorios, cada una con piscina privada y una ubicación privilegiada en primera línea de golf.
Características de alta calidad y comodidad
Todas las propiedades están construidas con acabados modernos y diseñadas para ofrecer comodidad y funcionalidad. Cada vivienda incluye baños totalmente equipados con muebles y mamparas de ducha, preinstalación para aire acondicionado por conductos y persianas motorizadas en los dormitorios.
Los apartamentos también cuentan con una plaza de aparcamiento privada y un trastero en el garaje subterráneo, accesible mediante ascensor, lo que garantiza comodidad y seguridad.
Ubicación privilegiada en Los Alcázares
Este complejo residencial goza de una ubicación estratégica con fácil acceso a todos los servicios, campos de golf y principales conexiones viarias. El centro de la localidad se encuentra a poca distancia a pie y ofrece supermercados, tiendas, restaurantes e instalaciones de ocio.
El Mar Menor es conocido por sus aguas tranquilas y cálidas, perfectas para nadar, navegar y practicar deportes acuáticos, mientras que La Serena Golf es muy apreciado por su diseño único con elementos acuáticos repartidos por todo el campo.
Distancias a puntos de interés clave
Playas del Mar Menor: 1,2 km
La Serena Golf: junto al complejo
Roda Golf: 4 km
Cartagena: 20 km
Aeropuerto Internacional de Murcia: 35 km
Aeropuerto de Alicante: 95 km
Tu hogar ideal en la Costa Cálida
Tanto si buscas una residencia permanente, un refugio vacacional o una inversión inteligente, esta promoción ofrece una combinación inmejorable de ubicación, calidad y estilo de vida. Ponte en contacto con nosotros hoy mismo para recibir más información o concertar una visita y asegurarte tu nuevo hogar en Los Alcázares.
1016