Modernas villas adosadas con piscina privada en Las Filipinas-Orihuela Costa
Exclusivas villas de nueva construcción en una ubicación privilegiada de la Costa Blanca
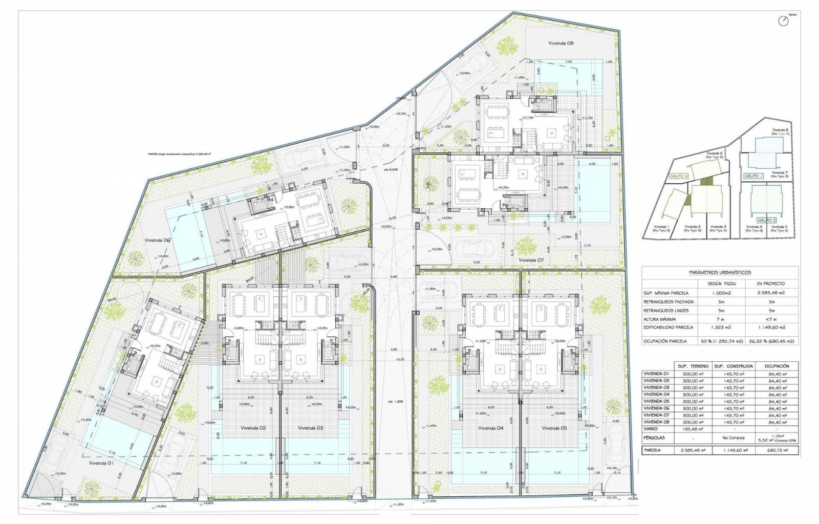
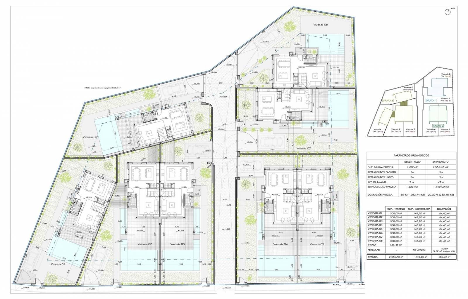
Descubra esta promoción boutique de ocho modernas villas adosadas situadas en Las Filipinas, Orihuela Costa, una de las zonas residenciales más codiciadas del sur de la Costa Blanca. Este barrio bien consolidado ofrece un excelente acceso a los servicios cotidianos, como supermercados, restaurantes, farmacias e instalaciones de ocio, todo ello a poca distancia.
Con una ubicación ideal entre algunos de los mejores campos de golf de la zona, como Villamartin Golf, Campoamor Golf, Las Ramblas Golf y Las Colinas Golf, estas villas ofrecen un estilo de vida excepcional para los amantes del golf y los compradores internacionales. Las hermosas playas de Orihuela Costa se encuentran a solo 6 km, lo que convierte a esta zona en un lugar ideal tanto para residencias permanentes como para casas de vacaciones.
Diseño contemporáneo con distribuciones amplias
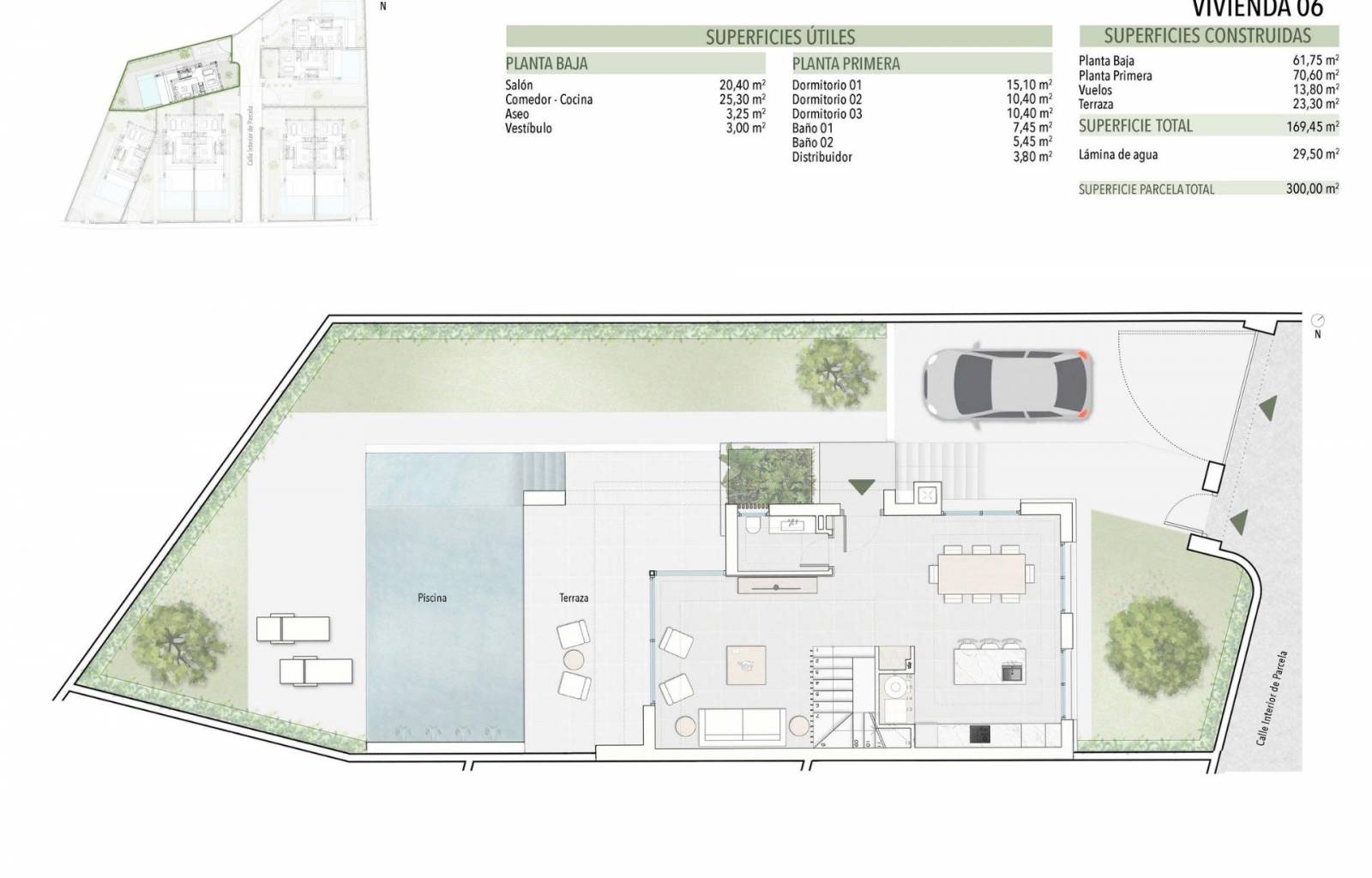
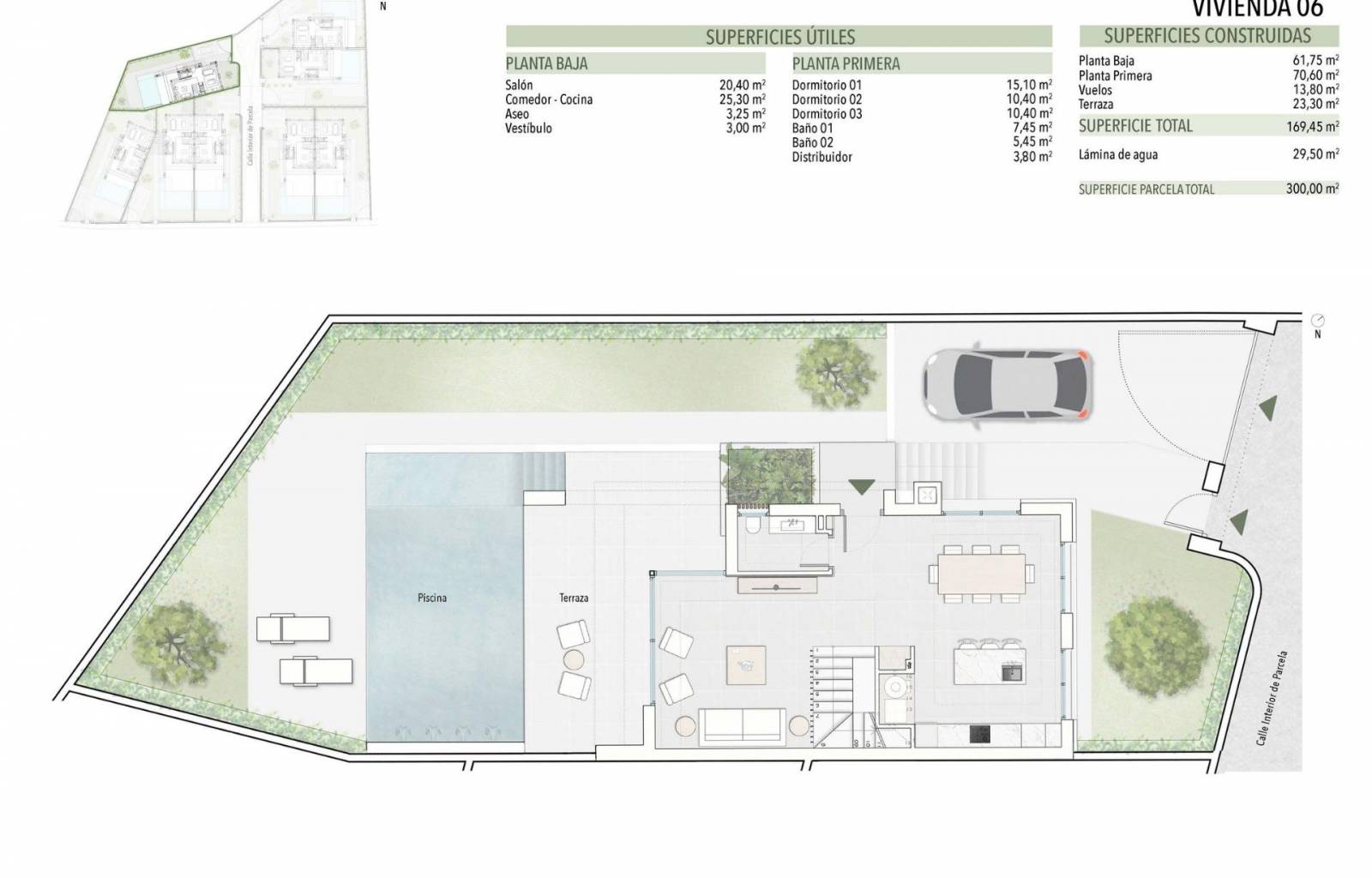
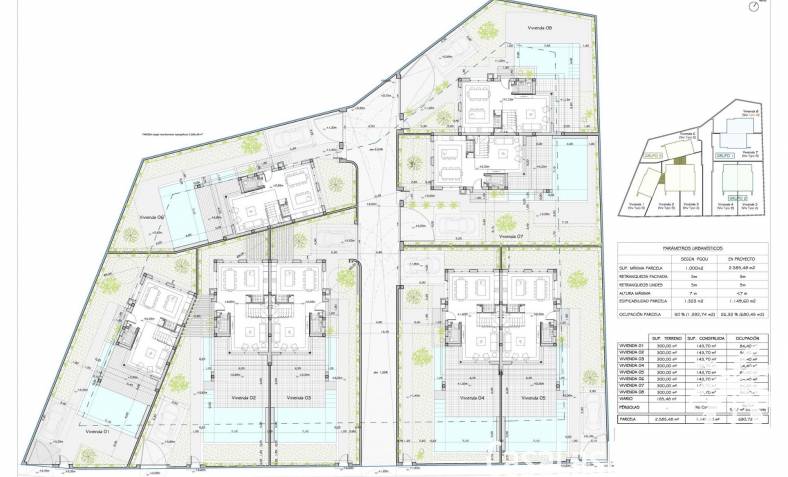
Cada villa está construida en una parcela privada de aproximadamente 300 m² y ofrece unos 140 m² de superficie habitable moderna distribuida en dos plantas. Las propiedades cuentan con tres dormitorios dobles, dos cuartos de baño completos con lavabos dobles, incluido uno en suite, y un aseo adicional para invitados.
La planta baja cuenta con una luminosa y elegante sala de estar con una pared decorativa acabada en piedra natural, lo que crea un ambiente cálido y elegante. Los grandes ventanales dan acceso directo a la terraza exterior y a la piscina privada, que incluye elementos decorativos de agua.
En la parte trasera de la propiedad, una cocina italiana de diseño con isla central e iluminación LED se abre a un amplio comedor con acceso al jardín y a la zona de aparcamiento privado.
Elegantes dormitorios y vida al aire libre
La primera planta incluye dos dormitorios de invitados con armarios empotrados y un cuarto de baño familiar. El dormitorio principal destaca por su sofisticado diseño, con un cabecero de roble que va del suelo al techo, detalles en espejo y un lujoso cuarto de baño en suite, además de vistas a la zona de la piscina.
También existe la opción de añadir un solárium en la azotea o un semisótano, lo que ofrece espacio adicional y posibilidades de personalización.
Características de alta calidad y comodidad moderna
Estas villas están construidas con materiales de alta calidad y la última tecnología para garantizar la comodidad y la eficiencia. Las características incluyen preinstalación para aire acondicionado por conductos, sistema aerotérmico para agua caliente, calefacción por suelo radiante en los baños y persianas eléctricas.
Otras especificaciones incluyen un sistema de alarma, videoportero y puerta de acceso automatizada para vehículos, lo que garantiza tanto la comodidad como la seguridad.
Ubicación privilegiada cerca de playas y campos de golf
Las Filipinas ofrece una ubicación estratégica con excelentes conexiones. Las playas de Orihuela Costa se encuentran a unos 6 km, mientras que el Aeropuerto Internacional de Murcia está a 50 km y el de Alicante a 55 km. Varios campos de golf de primer nivel se encuentran en un radio de entre 2 y 5 km.
Oportunidad de inversión ideal en la Costa Blanca
Estas modernas villas ofrecen una combinación perfecta de diseño, ubicación y estilo de vida, lo que las convierte en una excelente inversión o segunda residencia en la Costa Blanca.
Póngase en contacto con nosotros hoy mismo para obtener más información o concertar una visita y asegurarse su nueva villa en Orihuela Costa.
1016