Vida moderna en una codiciada zona residencial de la Costa Blanca
En Los Balcones, una de las zonas residenciales más cotizadas y consolidadas de las afueras de Torrevieja, se está construyendo un atractivo complejo residencial. La zona es conocida por su tranquilidad, amplias avenidas y espacios verdes; todos los servicios están a poca distancia. A tan solo 4 km de las playas de la Costa Blanca, ofrece una ubicación ideal para vivir todo el año o para disfrutar de unas vacaciones.
Los Balcones combina un tranquilo entorno residencial con excelentes servicios como supermercados, restaurantes, centros comerciales y centros médicos. Esto hace que la zona sea especialmente agradable para vivir durante todo el año.
Este complejo residencial consta de 52 modernos apartamentos distribuidos en una amplia parcela de aproximadamente 6.700 m² . Cada apartamento incluye una plaza de aparcamiento privada y un trastero en el sótano .
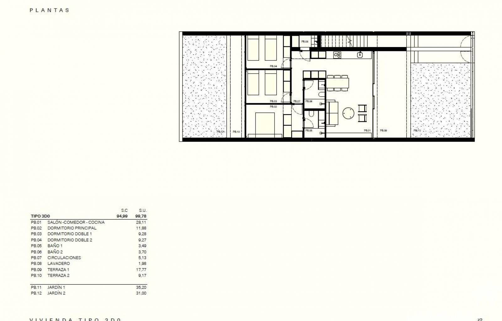
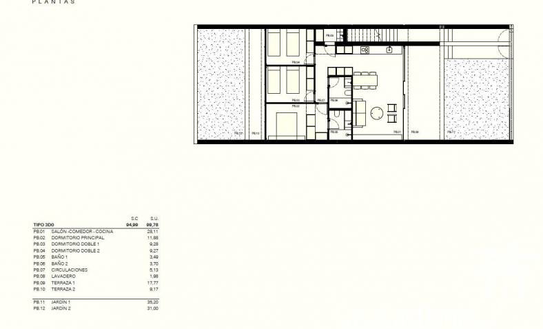
Podrás elegir entre apartamentos de 2 o 3 dormitorios y 2 baños , uno de ellos en suite.
Planta baja : Apartamentos con jardín privado
Planta alta : Apartamentos con amplia terraza y solárium privado.
Los planos están diseñados para aprovechar al máximo la luz natural y crear espacios interiores y exteriores confortables, perfectos para disfrutar del clima mediterráneo durante todo el año.
El proyecto consta de cuatro edificios residenciales que rodean un espacio verde comunitario bellamente ajardinado. Incluye:
Una gran piscina comunitaria con zona infantil separada.
Hermosos jardines y espacios verdes.
Estas áreas comunes seguras y bien mantenidas son ideales para relajarse, reuniones sociales y pasar momentos agradables con familiares o amigos.
Los apartamentos están construidos según estándares de calidad modernos e incluyen lo siguiente como estándar:
Preinstalación de aire acondicionado
Sistema aerotérmico para la preparación de agua caliente de alta eficiencia
Doble acristalamiento para un aislamiento térmico óptimo
Iluminación exterior
Cocinas totalmente equipadas con un diseño moderno y funcional.
Esto garantiza un alto nivel de confort vital, menores costes de mantenimiento y un consumo energético eficiente.
Playas de Torrevieja: aprox. 4 km
Golf Villamartín , Golf Las Ramblas y Golf Campoamor : aprox. 10 a 15 kilómetros
Hospital Universitario de Torrevieja : < 2 km
Centro de Torrevieja y puerto deportivo: aprox. 5 a 6 km
Aeropuerto de Alicante : aprox. 42 km
Los Balcones también está bien conectado con la red de transporte público, proporcionando un enlace directo al centro de Torrevieja.
Gracias a su moderno diseño, mobiliario de alta calidad, atractivas zonas comunes y ubicación estratégica cerca de playas, campos de golf y servicios, estos nuevos apartamentos en Los Balcones son una excelente opción como residencia principal , segunda residencia o interesante inversión inmobiliaria en la Costa Blanca.
¿Interesado? Contáctenos hoy mismo para más información o para concertar una visita a estas nuevas viviendas en Los Balcones, Torrevieja.