Diese neue, moderne Wohnanlage liegt im charmanten Städtchen San Miguel de Salinas, etwa 10 km vom Mittelmeer entfernt . Die Gegend ist bekannt für ihre nahegelegenen Salzseen und ihr außergewöhnliches Mikroklima, das zu den gesündesten in Europa zählt. Hier genießen Sie ruhiges Wohnen in zentraler Lage mit Geschäften, Restaurants, Supermärkten und allen Annehmlichkeiten in fußläufiger Entfernung .
Dank der leicht erhöhten Lage an der südlichen Costa Blanca genießen Sie einen ungestörten Ausblick, frische Luft und schnellen Zugang zu Stränden, Golfplätzen und Einkaufszentren.
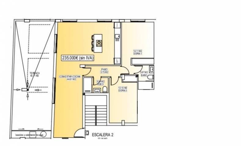
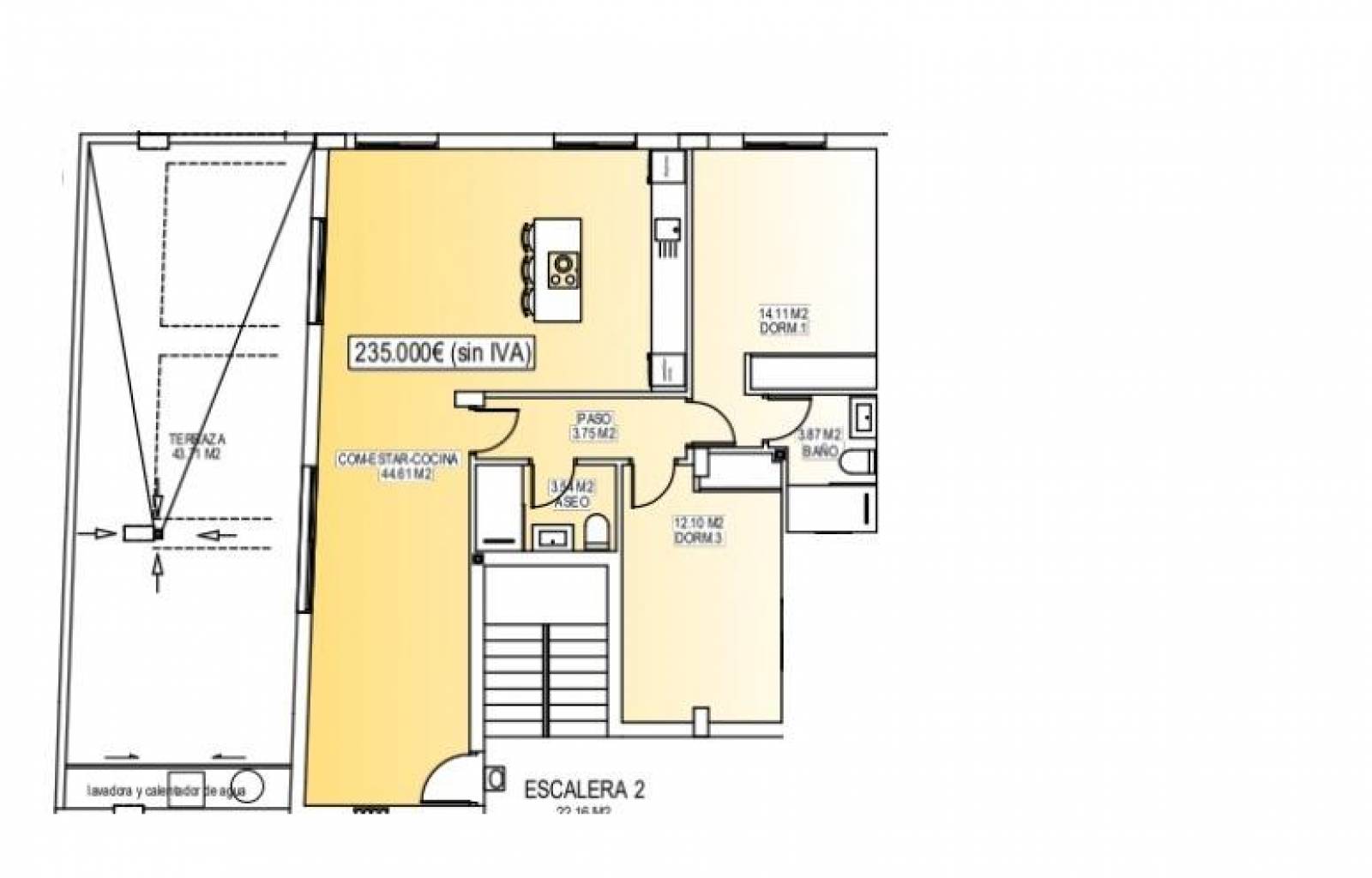
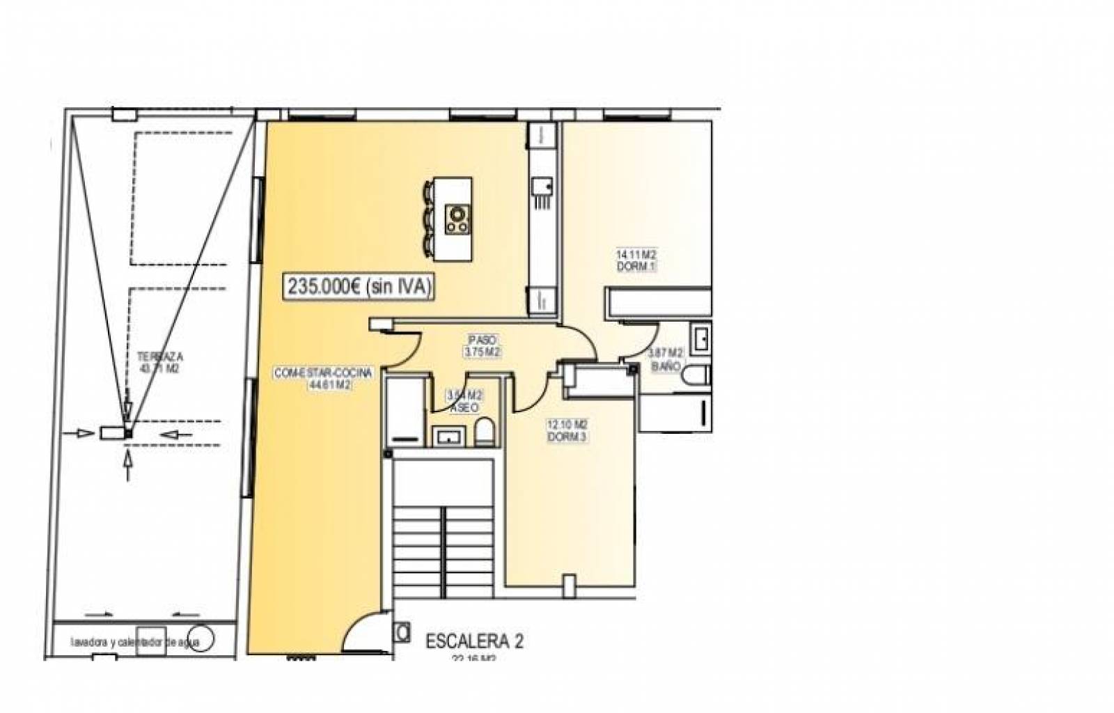
Das Projekt umfasst zwei moderne Wohngebäude, die durch einen wunderschön angelegten Gemeinschaftsgarten getrennt sind. Es bietet 56 Apartments mit ein, zwei oder drei Schlafzimmern , jeweils mit eigener Terrasse .
Bei der Planung der Häuser wurde besonderes Augenmerk auf Wohnkomfort, Ästhetik und Energieeffizienz gelegt. Sie sind mit hochwertigen Materialien und modernen Dämmsystemen ausgestattet.
Ausstattung pro Wohnung
Sicherheitstür
Badezimmer mit Waschbecken
Vorbereitung für die Klimaanlage
Energieausweis A
Optimale Anordnung und Ausrichtung für maximales natürliches Licht
Geeignet für dauerhaften Wohnsitz, Feriennutzung und Vermietung .
Die Gemeinschaftsräume bilden das soziale Herzstück der Anlage und sind für alle Altersgruppen geeignet.
Erdgeschoss
Landschaftsgärten und Entspannungsbereiche
Fahrradunterstand
Kinderspielplatz
Dachterrasse (ca. 350 m²)
70 m² großes Schwimmbecken mit separatem Kinderbecken
Pergolen, Liegestühle und schattige Bereiche
Panoramablick
Erreichbar über drei Aufzüge
Sanitäranlagen vorhanden
Mittelmeerstrände: 10 km
Zenia Boulevard : 9 km
Golfplatz Villamartín : 6 km
Las Colinas Golf & Country Club : 8 km
Torrevieja (Yachthafen): 12 km
Flughafen Alicante-Elche : 60 km
Flughafen Murcia Corvera : 55 km
Diese Wohnanlage vereint moderne Architektur, energieeffizienten Komfort und eine erstklassige zentrale Lage . Eine ideale Wahl als Hauptwohnsitz, Ferienimmobilie oder langfristige Investition in Spanien.
Bitte kontaktieren Sie uns, um die aktuelle Verfügbarkeit und Preise zu erfahren und einen Besichtigungstermin zu vereinbaren .